V2EX-最热主题
刚装修 130㎡新房,网络布线这样搞,有没有更优解?
#v2ex

llexus:

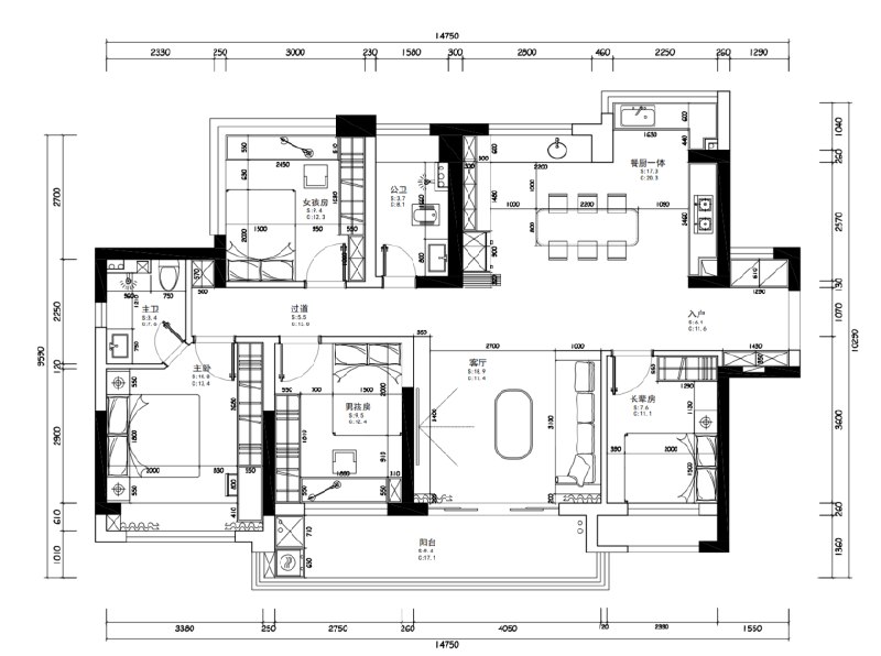
房子布置图

1. 装修的时候四个房间都预留了网络端口,客厅拉了两条网线。
2. 目前考虑用一个好点路由器(400 ¥-600 ¥)+5 口交换机(50 ¥-100 ¥)把几个房间的端口接上,方便后期放台式接线和加子路由。
3. 网线第一年打算用电信的 300M(1200 ¥/Year),通风也需要时间。一年后长期住再考虑上 1000M(2300 ¥/Year)。
4. 如果主卧信号不好,再考虑加一个子路由实现有线 Mesh 组网?有推荐组合吗?或者有更好的方案也可以给到,谢谢!

source
 
 
Back to Top